Klopp | Klassisk

Bed Icon
4-5
Soverom
Size Icon
95,4
m2
Pris
4-6
MNOK

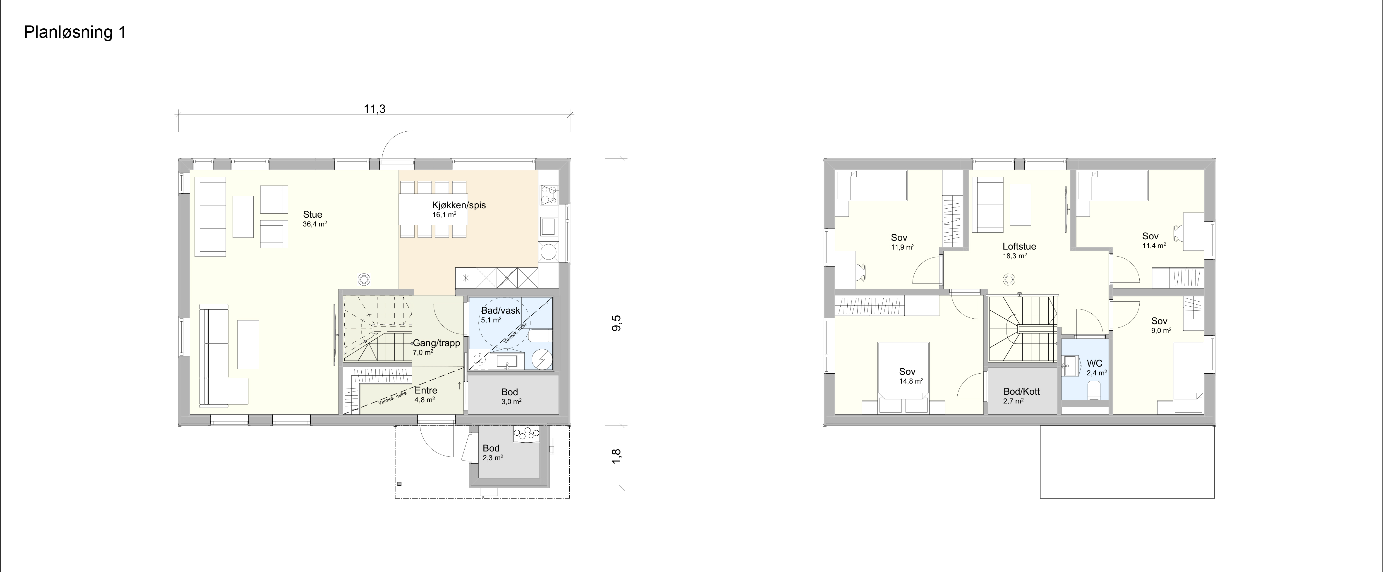
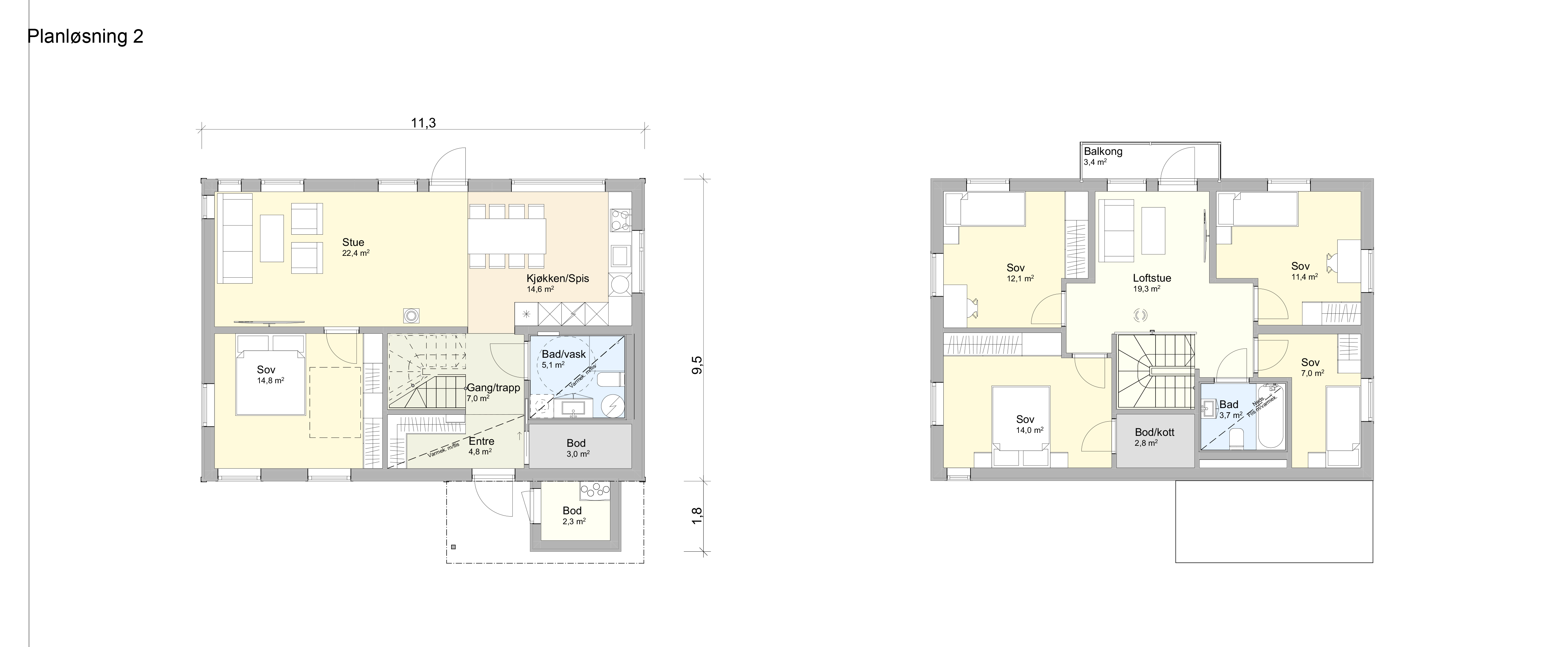
I Husmodell "Klopp" har du valget mellom 2 ulike planløsninger. Det er mulighet for ekstra familiedel på alle variasjoner av denne husmodellen.

Denne varianten har et tradisjonelt og romantisk preg. Dette er et trygt og elegant valg for deg som ønsker en bolig med harmonisk og gjenkjennelig formspråk.

Den klassiske takformen med takstein, kombinert med sprosser i vinduer, understreker husets helhet og gir en varm, hjemlig følelse som aldri går av moten.

Og du? Husmodell Klopp kan husbankfinansieres!

Detaljer
Boligareal (P-ROM)

m2
Bruksareal (BRA)

146,6

m2
Bebygd areal (BYA)

95,4

m2
Soverom

4-5

Tomtetype

Pris kategori

4-6

MNOK
*
*Leveres nøkkelferdig med betong.
Last ned tilvalgskatalogen
Hvordan vi jobber

Byggeprosess

1
Rådgiving
2
Valg av hus
3
Byggesøknad
4
Bygging
5
Overtakelse

Ta kontakt

For spørsmål og andre henvendelser, fyll ut skjemaet under, så svarer vi deg på e-post eller telefon.

Takk! Henvendelsen ble sendt.
Ups, det skjedde en feil...